![]()
今こそ真剣に二世帯住宅を考えませんか?
石川県金沢市の設計事務所、注文住宅(新築・一戸建て)の設計・監理はA-box設計室 トップへ→
北陸でも二世帯住宅の需要は高まってきています!
| 【親世代の希望】 年金・老後の不安の解消 孫と一緒に遊びたい 娘や息子と、旅行や買い物に行きたい 子守や家事の手伝いはむしろ歓迎 |
【子世代の希望】 共働きなので家事を助けて欲しい 子育ての負担を軽くしたい 広い家に住みたい 生活費の援助をして欲しい |
| ▼ | |
| 〈〈元来、北陸は二世帯同居の意識が高い地域〉〉 | |
| 【老後の暮らし方について】 子供と一緒に暮らしたい 北陸平均36% 〈全国平均29%〉 |
【世帯形態について】 三世代世帯の割合 石川県16% 〈全国平均7%〉 |
| ▼ | |
| 〈〈・・・かといってナカナカ同居に踏み切れないアナタ!〉〉 | |
| ↓新しいタイプの二世帯住宅をA-box設計室が提案します↓ | |
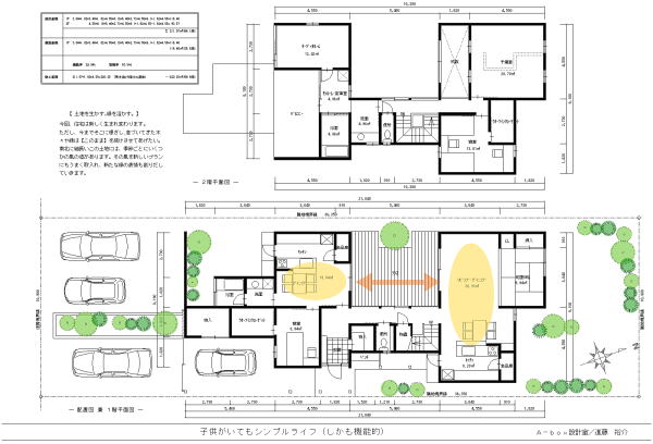
中庭でつなぐ二世帯住宅
目指したのは風通しのイイ関係
図面の南側が親世帯、北側に子供世帯を配置しました。
共に2階建て、その中間に中庭を設け二世帯を繋ぎます。
中庭は文字通り《二世帯を繋ぐ場》であり、緩衝地帯であり・・
お互いの視線も行き交いますし、風の通り道、陽射しも交差します。
この計画の場合はおばあちゃん、息子夫婦、その子供が暮らします。
それぞれの個、お互いが様々な距離感をつくりだせるプランです。

子供とお母さん、若しくはお父さんとの関係
おばあちゃんとお孫さん、
おばあちゃんとお母さん、お父さんとの係わり方
せっかく南北に風通しの良い配置が出来るのだから
一緒にに暮らす二世帯の風通しにも配慮しました。
お互いのプライバシーは保ちつつ、無理に意識しなくとも
顔を会わせる機会が増えていく・・・
自然と優しい気持ちで過ごせる住まい


施工例【中庭のある2世帯住宅M邸】 >>住まいのデータ
>>出会い〜竣工まで
>>スライドショー

(関連記事) 管理人の思い・・・二世帯住宅について
<<topへ <<住まいへの思い <<二世帯住宅のススメ >>住宅データ02(M接骨院+二世帯住宅)
ご挨拶|注文住宅 施工例|住まいへの思い|設計の進め方|入札でコストダウン|お客様の声|事務所概要
Q&A(設計料等)|リンク|掲示板|ワンランク上の家を建てるには|何から始めればいいの?家づくり
出会いから完成までの記録M邸|出会いから完成までの記録Y邸|土地探し
一級建築士(進藤裕介)|子供部屋の7つのポイント|資料請求|お問合せ・ご相談|無料プランニングサービス
二世帯住宅のススメ|ろじっく(石川県近郊フォト集)|旅の写真帳|住まいの無料相談
石川県金沢市の設計事務所、注文住宅(新築・一戸建て)の設計・監理はA-box設計室 トップへ→
Copyright 2005 A-box Co,Ltd.All right reserved.